Samodzielne zaplanowanie i wykonanie instalacji alarmowej w domu może wydawać się skomplikowane, ale z odpowiednim przewodnikiem jest to zadanie jak najbardziej wykonalne. Ten artykuł to kompleksowy poradnik DIY, który przeprowadzi Cię przez kluczowe etapy, od wyboru systemu, przez tworzenie schematu, aż po fizyczny montaż. Pomoże Ci to skutecznie zabezpieczyć Twój dom, uniknąć kosztownych błędów i zrozumieć, jak działają poszczególne komponenty, niezależnie od tego, czy zdecydujesz się na system przewodowy, czy bezprzewodowy.
Samodzielna instalacja alarmu w domu krok po kroku
- Wybierz między systemem przewodowym (stabilniejszy, do remontu) a bezprzewodowym (łatwiejszy montaż, do gotowych wnętrz).
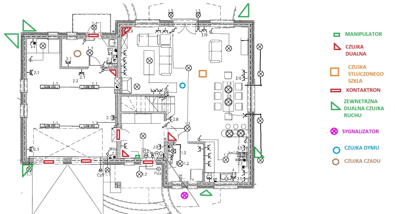
- Stwórz szczegółowy schemat rozmieszczenia centrali, manipulatorów, czujek ruchu, kontaktronów i sygnalizatora.
- Centralę umieść w ukrytym miejscu, manipulatory przy wejściach, a czujki PIR w narożnikach, unikając źródeł zakłóceń.
- Prowadź kable YTDY w osobnych peszlach, z dala od instalacji 230V, zawsze osobno do centrali.
- Pamiętaj o prawidłowym montażu i podłączeniu wszystkich komponentów zgodnie z planem.
- Unikaj typowych błędów, takich jak montaż czujek naprzeciwko okien czy ochrona tylko drzwi wejściowych.

Twój dom pod czujną strażą – od czego zacząć planowanie instalacji alarmowej?
Zanim przystąpisz do jakichkolwiek prac montażowych, kluczowe jest staranne zaplanowanie całego systemu. To właśnie na tym etapie decydujesz o jego skuteczności i niezawodności przez lata. Dobrze przemyślany plan to fundament bezpiecznego domu.
Alarm przewodowy czy bezprzewodowy? Kluczowa decyzja na start: Wybór między systemem przewodowym a bezprzewodowym to pierwsza i jedna z najważniejszych decyzji. Systemy przewodowe, choć wymagają bardziej inwazyjnej instalacji (ukrywanie kabli w ścianach), oferują niezrównaną stabilność i niezawodność działania. Są idealnym rozwiązaniem na etapie budowy domu lub podczas generalnego remontu. Z kolei systemy bezprzewodowe są znacznie łatwiejsze w montażu i nie wymagają ingerencji w istniejące wykończenia, co czyni je doskonałym wyborem dla już zamieszkałych budynków. Ich główną wadą jest konieczność regularnej wymiany baterii w czujnikach, co może być uciążliwe.Szkic to podstawa: Jak stworzyć prosty, ale skuteczny plan rozmieszczenia urządzeń?: Stworzenie szczegółowego schematu rozmieszczenia wszystkich elementów systemu alarmowego jest absolutnie kluczowe. Taki plan powinien uwzględniać precyzyjne lokalizacje centrali alarmowej, manipulatorów (klawiatur), czujek ruchu (PIR), kontaktronów (czujek magnetycznych) oraz sygnalizatora zewnętrznego. Dokładne zaplanowanie tych miejsc pozwoli uniknąć błędów montażowych i zapewni optymalne pokrycie chronionego obszaru, maksymalizując skuteczność systemu.
Jakie elementy są niezbędne? Krótki przegląd komponentów, które musisz mieć: Podstawowy system alarmowy składa się z kilku kluczowych elementów. Centrala alarmowa to "mózg" całego systemu, zarządzający jego pracą. Manipulator (klawiatura) służy do uzbrajania i rozbrajania alarmu. Czujki ruchu (PIR) wykrywają ruch w chronionym pomieszczeniu, a kontaktrony (czujki magnetyczne) reagują na otwarcie drzwi lub okien. Całość dopełnia sygnalizator zewnętrzny, który informuje o alarmie.

Krok 1: Strategiczne rozmieszczenie mózgu i oczu systemu alarmowego
Optymalne rozmieszczenie poszczególnych komponentów systemu alarmowego jest fundamentem jego skutecznego działania. Każdy element musi znaleźć się w odpowiednim miejscu, aby zapewnić maksymalne pokrycie i minimalizować ryzyko fałszywych alarmów.
Gdzie ukryć centralę alarmową? Najbezpieczniejsze lokalizacje w Twoim domu: Centrala alarmowa powinna być zamontowana w miejscu jak najbardziej ukrytym i trudnodostępnym dla potencjalnego intruza. Doskonale sprawdzą się do tego celu pomieszczenia takie jak garderoba, schowek, spiżarnia, pomieszczenie gospodarcze, a nawet garaż. Ważne jest, aby miejsce to było chronione przed bezpośrednim dostępem z zewnątrz.Manipulator przy wejściu to nie wszystko gdzie jeszcze warto go zamontować?: Najczęściej manipulator montuje się przy głównym wejściu do domu, co jest praktyczne do codziennego użytkowania. Jednak warto rozważyć montaż dodatkowego manipulatora w strategicznych miejscach, na przykład w sypialni. Umożliwi to szybkie rozbrojenie alarmu po przebudzeniu lub jego uzbrojenie przed wyjściem z pokoju w nocy, bez konieczności udawania się do drzwi wejściowych.
Sztuka rozmieszczania czujek ruchu (PIR): Jak objąć zasięgiem kluczowe strefy?: Czujki ruchu PIR najlepiej montować w narożnikach pomieszczeń, na wysokości około 2,2 do 2,4 metra. Taka lokalizacja zapewnia im szerokie pole widzenia i efektywne wykrywanie ruchu. Kluczowe jest jednak, aby unikać montażu czujek bezpośrednio naprzeciwko okien, drzwi balkonowych, a także w pobliżu źródeł ciepła, takich jak grzejniki czy kominki. W przeciwnym razie narażamy się na częste fałszywe alarmy.
Niewidzialni strażnicy: Dlaczego kontaktrony na oknach i drzwiach są tak ważne?: Kontaktrony, czyli czujki magnetyczne, stanowią pierwszą linię obrony Twojego domu. Montowane na ramach okien i drzwi, natychmiast informują centralę o próbie ich otwarcia. Ich obecność jest niezbędna do zapewnienia kompleksowej ochrony przed włamaniem.
Sygnalizator zewnętrzny jak zamontować go wysoko i bezpiecznie?: Sygnalizator zewnętrzny powinien być umieszczony na elewacji budynku, na jak największej wysokości. Utrudnia to intruzowi dostęp do niego i jego ewentualne uszkodzenie lub wyłączenie. Pamiętaj o jego solidnym zamocowaniu, aby był odporny na warunki atmosferyczne.

Krok 2: Prowadzenie okablowania w systemie przewodowym – praktyczny poradnik
W przypadku systemów przewodowych, sposób prowadzenia okablowania ma fundamentalne znaczenie dla niezawodności i bezpieczeństwa całej instalacji. Przestrzeganie kilku prostych zasad pozwoli uniknąć wielu problemów.
Jakie przewody do alarmu wybrać, by nie żałować? YTDY to nie jedyna opcja: Do instalacji alarmowych najczęściej stosuje się przewody typu YTDY, zazwyczaj o przekroju 6x0,5 mm. Są one elastyczne, dobrze ekranowane i posiadają wystarczającą liczbę żył do podłączenia większości czujek i manipulatorów. Wybór odpowiedniego przewodu jest kluczowy dla stabilności sygnału i niezawodności systemu.
Zasada numer jeden: Nigdy nie kładź kabli alarmowych obok przewodów 230V!
Zasada numer jeden: Nigdy nie kładź kabli alarmowych obok przewodów 230V!
Jest to absolutnie fundamentalna zasada, której należy bezwzględnie przestrzegać. Prowadzenie kabli alarmowych w bezpośrednim sąsiedztwie przewodów zasilających 230V może prowadzić do powstawania zakłóceń elektromagnetycznych, które negatywnie wpływają na pracę czujek i centrali, a nawet mogą powodować fałszywe alarmy. Zawsze zachowuj bezpieczną odległość.
Technika prowadzenia przewodów: Od każdej czujki osobny kabel do centrali: Najlepszą i najbardziej zalecaną techniką jest prowadzenie od każdego elementu systemu (czujki, manipulatora, kontaktronu) osobnego, dedykowanego przewodu do centrali alarmowej. Choć wymaga to więcej pracy i materiału, gwarantuje to niezależność każdego obwodu i ułatwia diagnostykę ewentualnych problemów.
Ukrywanie kabli w praktyce bruzdy, peszle i listwy instalacyjne: Aby instalacja była estetyczna i bezpieczna, kable należy ukryć. Można to zrobić, prowadząc je w bruzdach wyciętych w ścianach, a następnie je zatynkowanych. Alternatywnym rozwiązaniem jest użycie peszli (rur ochronnych), które zapewniają dodatkową ochronę kabli i ułatwiają ich ewentualną wymianę. W niektórych przypadkach można również zastosować listwy instalacyjne, które maskują przewody na powierzchni ścian.
Krok 3: Montaż i podłączenie – serce i zmysły Twojego alarmu
Gdy plan jest gotowy, a okablowanie poprowadzone, czas na fizyczny montaż i podłączenie poszczególnych komponentów. Kluczem do sukcesu jest ścisłe przestrzeganie wcześniej przygotowanego schematu.
Montaż centrali i manipulatora jak to zrobić poprawnie?: Centralę alarmową należy zamontować w wybranym, ukrytym miejscu, zgodnie z zasadami bezpieczeństwa. Manipulator (klawiaturę) montujemy na odpowiedniej wysokości, zazwyczaj w pobliżu wejścia, upewniając się, że jest stabilnie przymocowany do ściany.
Prawidłowe podłączanie czujek i kontaktronów zgodnie ze schematem: Podłączenie czujek ruchu i kontaktronów do centrali wymaga precyzji. Należy ściśle przestrzegać schematu instalacji, podłączając odpowiednie żyły przewodów do właściwych zacisków w centrali i w samych czujkach. Błąd w podłączeniu może skutkować nieprawidłowym działaniem lub brakiem reakcji danego elementu.
Instalacja sygnalizatora zewnętrznego o czym należy pamiętać?: Montaż sygnalizatora zewnętrznego powinien być wykonany solidnie, aby zapewnić jego stabilność i odporność na warunki atmosferyczne. Należy również pamiętać o prawidłowym podłączeniu przewodów sygnałowych i zasilających do centrali alarmowej, zgodnie ze schematem.
Najczęstsze błędy, których musisz unikać, aby alarm był naprawdę skuteczny
Nawet najlepiej zaplanowana instalacja może okazać się nieskuteczna, jeśli popełnimy podstawowe błędy montażowe. Oto najczęściej spotykane pułapki, których należy unikać jak ognia.
Błąd #1: Montaż czujek naprzeciwko okien i grzejników przepis na fałszywe alarmy: Jak już wspominałem, montowanie czujek ruchu PIR bezpośrednio naprzeciwko okien, drzwi balkonowych, a także w pobliżu źródeł ciepła, takich jak grzejniki czy kominki, jest prostą drogą do generowania fałszywych alarmów. Zmiany temperatury i ruch powietrza mogą być błędnie interpretowane przez czujkę jako ruch intruza.
Błąd #2: Ochrona tylko drzwi wejściowych dlaczego to za mało?: Zabezpieczenie wyłącznie drzwi wejściowych to znaczące niedopatrzenie. Skuteczny system alarmowy musi obejmować wszystkie potencjalne punkty wejścia do budynku. Według danych f-pi.pl, równie ważne jest zabezpieczenie okien, drzwi balkonowych, tarasowych, a także wszelkich innych dostępnych otworów, które mogą stanowić drogę dla włamywacza.
Błąd #3: Brak zapasowych żył w przewodach jak nie utrudniać sobie przyszłej rozbudowy?: Pozostawienie w każdym przewodzie kilku zapasowych żył jest bardzo dobrą praktyką. Chociaż może wydawać się to zbędne na początku, w przyszłości znacznie ułatwi to ewentualną rozbudowę systemu alarmowego, dodanie nowych czujek czy serwisowanie istniejących. Oszczędza to czas i koszty związane z koniecznością ponownego kładzenia okablowania.
Błąd #4: Złe umiejscowienie centrali dlaczego łatwy dostęp to zły pomysł?: Centrala alarmowa to serce systemu, ale także jego potencjalnie najsłabszy punkt, jeśli jest łatwo dostępna. Montowanie jej w widocznym miejscu lub tam, gdzie intruz może szybko do niej dotrzeć i ją uszkodzić, jest poważnym błędem. Zawsze wybieraj miejsca ukryte i bezpieczne.
